为了统一中威双面镀锌钢板复合防排烟风管的生产和加工,确保防排烟风管的质量,制定本标准。
风管的结构形式为套简式:内层镀锌钢板风管+漂珠耐火隔热板+外层镀锌钢板风管。

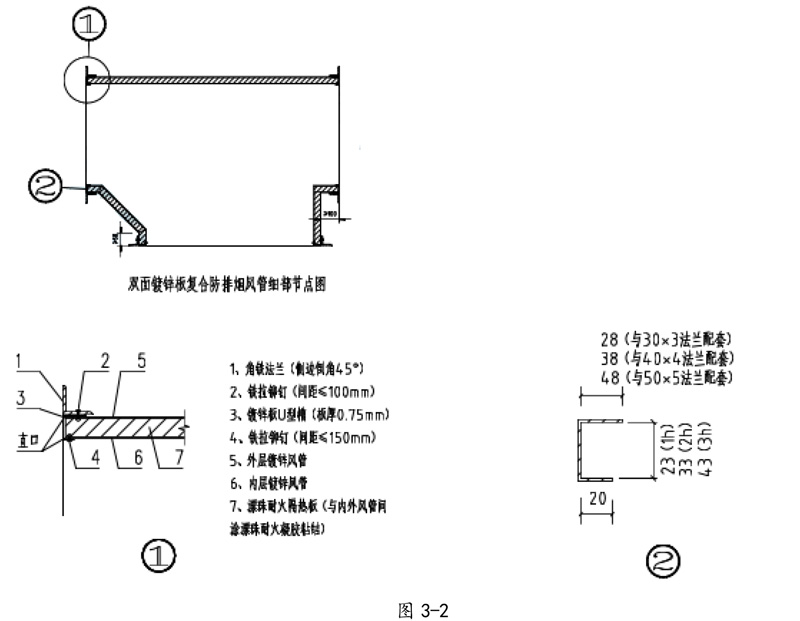
风管标准节长度为1250 (1220)mm ( 根据镀锌卷料幅宽确定),风管异形件制作成折线所示


内、外层风管采用镀锌钢板,镀锌层的厚度应符合合同规定。内、外层风管板厚0. 5mm,角钢法兰的选用以及螺栓规格应满足下表3-1要求,侧面切45倒角。
表3-1双面镀锌钢板 复合防排烟风管角钢法兰材料规格及螺栓和铆钉孔距(mm)
中间芯板采用漂珠耐火隔热板,端口用镀锌板 U 型口封边,芯板和U 型口的技术参数详见表 3-2
3 、完成后的成品风管直管和异形件长边及短边尺寸按内径尺寸检验,具体标准见表3-3

1、管体预制:内外层钢板风管在风管生产线上加工成型,管体组装可采用四片法、L片法或一片法,风管的四角组合采用联合角咬口(图3-1), 直板需要拼接时采用平接口。

风管内侧钢板风管和外侧钢板采用L片法或一片法,外侧钢板的口径大小根据内层钢板风管和耐火隔热层厚度而定,详见表3-2内外层风管端口形式为直口。

2、 耐火隔热层与内层镀锌钢板保护层和外侧钢板的复合组装可根据咬口形式、风管管径大小、风管形式(异型管和直风管) 选择。通常可采用:1、内侧钢板风管漂珠硅酸钙板包覆外侧钢板包合咬口; 2、内侧钢板风管+外侧钢板包覆形成空心筒结构填充耐火隔热层包覆。其中漂珠硅酸钙防火板板缝处需使用漂珠耐火凝胶进行密封处理。
复合组装后的风管端口加装 U 型槽口料,护口长度依据外层镀锌钢板风管长边及短边长度加工选用。U 型槽护口安装必须与角铁法兰在同一平面,长边与短边交接处可采用45角拼接(图 3-3) (如无专业工m6米乐官网 米乐M6平台入口具切 45角,也可采用直角拼接),四角相交部位平整无错台。U 型槽口料规格风管端面用 U 型口料封边,U 型口规格尺寸根据耐米乐M6 米乐平台火极限及配套角铁法兰规格确定(见图 3-2) ,U 型槽口料与内层镀锌风管用铁拉铆钉固定,固定间距150㎜。

风管加固形式采用 M10 通丝杆+套外径16 ㎜金属镀锌套管内支撑加固。加固规则见表米乐M6 米乐平台 3-4。风管内外均加60 ㎜专用圆垫片,加固螺母拧紧后,丝杆外露长度10㎜,加固螺母一定拧紧,垫片不准有变形及缺陷。丝杆孔必须打漂珠耐火凝胶,再装外垫片。(见图 3-4)
采用手提式带水瓷砖切割锯,开口尺寸要大于标定尺寸5 ㎜,开完口后用涂好耐火胶的 U 型口进行四边镶嵌,镶嵌后在镀锌铁板风管外侧打铁拉铆钉固定U 型槽口料,铆钉间距150 ㎜均匀布置,U 型口四角用漂珠耐火凝胶均匀填缝。见图3-5

(1) 防排烟风管法兰由四根角钢组焊而成,划线下料时应注意使焊成后的法兰内径不能小于风管外径。用切割机切断角钢,下料调直后用台钻加工,其中螺栓孔距应不大于100mm。
(2) 风管法兰加工采用模具法加工,同一型号的法兰采用一个模具,以保证法兰的互换性和尺寸精度;
(4) 法兰平面度的允许偏差为 1mm,矩形法兰两对角线) 风管与法兰连接采用拉铆铆接, 固定间距不大于100mm。
(2) 风管与法兰铆接前先进行技术质量复核。将法兰套在风管上,管中心线与法兰平面应垂直,然后使用铆钉将风管与法兰固定。
(3)法兰短边与长边交接处与钢板风管接触面切 45角,如图 3-6 所示。

3. 2.6、弯头加导流片规则弯头安装导流片管口两头各减 100mm,厚度 0.75mm
5、当风管的外径或外边长小于或等于 800mm 时,其允许偏差不应大于1mm;当风管的外径或外边长大于 800mm 时,不应大于 2mm
6、管口平面度的允许偏差不大于 2mm,矩形风管两条对角线mm、保温风管边长大于 800mm,管段长度大m6米乐官网 米乐M6平台入口于1250mm或低压风管单边平面积大于 1.2 ㎡ 、中、高压风管大于 1.0 ㎡,均应采取丝杆+套管内支撑加固。
1、在连接法兰铆钉时,必须使铆钉中心线垂直于板面,让铆钉头把板材压紧,使板缝密合。
2、风管生产线、剪板机、咬口机等设备使用前要根据板材厚度调整好,以保证风管的加工精度。
8、打胶宽度应均匀,平整,并无断点,漏点,起疙瘩,非打胶位置不可粘附密封胶。