通风采光天窗11CJ33是一本建筑标准设计图集,主要介绍了MCW系列的通风天窗和C系列的电动采光排烟天窗(C1T三角型电动采光排烟天窗、C2T一字型电动采光排烟天窗、C3CT圆拱型(侧开式)电动采光排烟天窗、MC3CT圆拱型(侧开式)电动采光排烟天窗、C3ST圆拱型(上开式)电动采光排烟天窗和C3G固定式圆拱型采光天窗)。11CJ33作为建筑通风采光领域的重要参考图集,目前已被众多设计单位应用到诸多工业厂房中,并助力钢结构厂房实现通风换气、自然采光和消防排烟功能。

一、MCW系列通风天窗1、天窗系列MCW系列通风天窗主要包括MCW1型并列风道式薄型通风天窗、MCW2型间隔风道式薄型通风天窗、MCW3型碗式通风天窗、MCW4型压杆式流线型暗扣式流线型整体骨架式流线型箱形骨架式流线型通风天窗。

2、天窗抗风性能MCW系列通风天窗的抗风压强度值小于或者是等于1.0kPa,雪荷载小于或者是等于0.4kN/㎡。当抗风压强度值和雪荷载值大于上述数值的时候,应该与天窗供应商进行协商,另行设计制作符合要求的通风天窗。

3、天窗抗震等级MCW系列通风天窗适用于非地震地区和抗震设防烈度小于或者是等于7度的地震区,如果不能满足抗震等级要求的,需与天窗供应商进行沟通,设计符合抗震等级要求的天窗产品。

4、天窗基座说明MCW系列通风天窗的基座是天窗与屋面的连接构件,应该根据所选用的通风天窗型号(MCW1型-MCW7型)、供应商提供的资料和建筑结构特点进行结构计算、设计,并由钢结构施工单位进行安装制作。(本图集的安装图仅供参考使用)

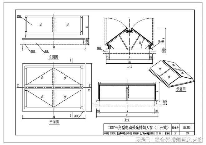
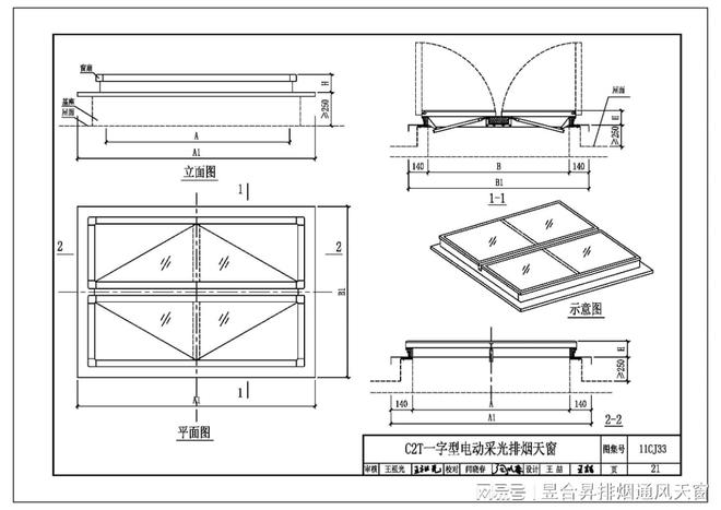
5、天窗防腐处理MCW系列通风天窗骨架的防腐处理方式可以分为普通油漆处理、热镀锌处理、重防腐涂料处理。天窗的防腐方式、防腐材料和色彩根据具体的工程设计要求进行制作。二、C系列电动采光排烟天窗1、排烟天窗系列C系列电动采光排烟天窗主要包括C1T三角型电动采光排烟天窗、C2T一字型电动采光排烟天窗、C3CT圆拱型(侧开式)电动采光排烟天窗、MC3CT圆拱型(侧开式)电动采光排烟天窗、C3ST圆拱型(上开式)电动采光排烟天窗和C3G固定式圆拱型采光天窗。

2、排烟天窗适用建筑C系列电动采光排烟天窗主要适用于屋面坡度为2%~10%的建筑进行屋面通风、采光和排烟。C系列电动采光排烟天窗主要可以应用在冶金工业、航空航天、造船船舶、机械加工、玻璃造纸、轻工、重工、电力、能源等行业建筑及大型公共建筑。(钢结构、现浇钢筋混凝土及网架屋面均可应用)

3、排烟天窗控制方式C系列电动采光排烟天窗有三种控制方式,即:普通控制方式(代号“T”)、智能控制方式(代号“Z”)、智能网络控制方式(代号“W”)。

4、排烟天窗性能要求C系列电动采光排烟天窗的气密性、水密性和抗风压性能应符合GB/T《建筑外窗气密、水密、抗风压性能分级检测方法》的相关要求规定。

5、排烟天窗防水要求在图集中,明确标明C系列电动采光排烟天窗产品内部防水节点及与屋面的泛水节点,均需采用结构防水技术,不得再使用硅胶、胶带填缝堵漏,以避免硅胶、胶带易老化龟裂造成的漏水隐患。
特别声明:以上内容(如有图米乐M6 m6米乐片或视频亦包括在内)为自媒体平台“网易号”用户上传并发布,本平台仅提供信息存米乐M6 m6米乐储服务。
X5从79万跌至32万,3.0T米乐M6 米乐平台+381马力,豪华SUV市场搅局者,还等啥?
《编码物候》展览开幕 北京时代美术馆以科学艺术解读数字与生物交织的宇宙节律
雷克沙战神之翼D5 6000 C26内存图赏:黑白撞色,AMD平台性能战神
联力推出 EDGE Gold 系列 L 型电源,配备可插拔 Edge Hub 集线器
苹果将Apple Watch 4与2019款15英寸MacBook Pro添加到复古产品列表
《编码物候》展览开幕 北京时代美术馆以科学艺术解读数字与生物交织的宇宙节律