2023年3月1日,最新规范《消防设施通用规范》GB55036-2022即将实施。新规取消了《建筑防烟排烟系统技术标准》GB51251-2017对内衬风管的强制性要求!
2018年8月1日,史上最严防排烟标准《建筑防烟排烟系统技术标准》GB51251-2017实施,其中强条3.3.7和4.4.7规定:送风(排烟)系统应采用管道送风(排烟),且不应采用土建风道,送风(排烟)管道应采用不燃材料制作且内壁应光滑。


3.3.7 机械加压送风系统应采用管道送风,且不应采用土建风道。送风管道应采用不燃材料制作且内壁应光滑。当送风管道内壁为金属时,设计风速不应大于20m/s;当送风管道内壁为非金属时,设计风速不应大于15m/s;送风管道的厚度应符合现行国家标准《通风与空调工程施工质量验收规范》的规定。 4.4.7 机械排烟系统应采用管道排烟,且不应采用土建风道。排烟管道应采用不燃材料制作且内壁应光滑。当排烟管道内壁为金属时,管道设计风速不应大于20m/s;当排烟管道内壁为非金属时,管道设计风速不应大于15m/s;排烟管道的厚度应按现行国家标准《通风与空调工程施工质量验收规范》的有关规定执行。
设置这项强制要求的原因是,土建竖井尺寸较小,保持内表面光滑的难度较大,而且部分土建竖井施工过程中会遗留较多施工孔洞,要求设置内衬风管是出于减小风阻和减少漏风的考虑。

2023年3月1日,最新规范《消防设施通用规范》GB55036-2022即将实施!新规取消了《建筑防烟排烟系统技术标准》GB51251-2017对内衬风管的强制性要求。
鉴于这两年工程实际应用中遇到的问题,提醒设置内衬风管的项目:设计图纸应注明竖井内衬风管的材质、耐火极限、做法和尺寸,内衬风管时还应考虑施工的便利,施工人员要主动与土建施工单位协调内衬风管的施工顺序。
1. 土建竖井内设置金属风管时,为减少风管安装难度,同时减少土建风井尺寸,竖井井壁应尽可能采用后砌墙的方式,且采用后砌墙体时,建筑图纸上应注明该墙体应在设备专业风管安装完成后砌筑。
2. 竖井内设置金属风管的施工顺序应为:钢筋混凝土墙、板→金属风管→后砌建筑砖墙。
3. 风井应尽量避免三面都是混凝土墙的情况,因此类情况风管安装困难,且安装需预留的空间大,对面积影响比较大。
a. 风管连接时需要在风管连接处的四个角进行螺栓连接,安装时应米乐M6 m6米乐考虑风管四个角上螺栓的合理安装空间。风管四边的插条或弹簧夹可在风管连接处靠外侧安装后,利用工具推至合适位置即可,因此其余区域无需预留人员进入所需的安装操作空间(附图一)。

b. 对于风井井壁有三面都是后砌的情况,风管连接处四角的螺栓都容易安装,因此风管与混凝土墙体间仅需预留150mm空间安装即可(附图二)。

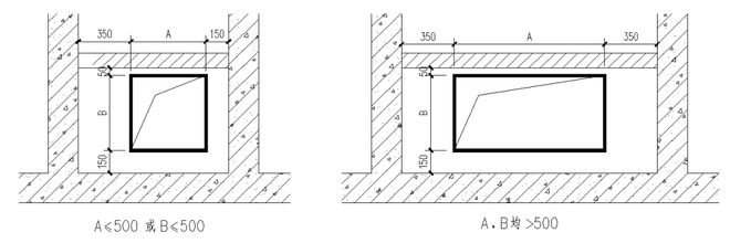
c. 对于两面后砌井壁,若风管长度或宽度不超过500mm,安装人员可在风管外侧对墙角处风管连接螺栓进行安装,风管两侧也仅需预留150mm的空间即可;若风管长度和宽度都超过500mm,安装人员需进入风管与墙体之间的空间对墙角处风管进行连接,因此应保证有一边的风管与墙体之间的距离不小于350mm,此边可以是风管较短的边,可节约安装空间(附图三)。

d. 若风井仅有一面井壁可后砌,风管长度或宽度不超过500mm时,需要在风管一侧预留350mm的安装空间,以便安装人员对后侧风管进行连接;若风管两边长度均超过500mm,需要在风管两侧均预留350mm的安装空间,以便多风管后侧角部螺栓及背面进行连接(附图四)。

e. 一个竖井内设置多个风管时,风管间距及风管距墙的距离也应按上述原则确定(附图五、附图六)。

b. 对于三面后砌墙,多风管需考虑中间处角部螺栓的安装,若B500且A或C500,则风管背面距墙的距离不应小于350mm。

a. 多风管安装,原则上遵循上述原则,即安装人员能用手直接触及每个风管的四角,且有150mm的安装空间。
b. 风管连接处的固定弹簧夹应能够安装(当风管边长小于200时可不考虑)。
c. 上图为风管尺寸均小于等于500的情况,超过500时按前述规则确定。
f. 若米乐M6 m6米乐建筑不是高层,风管竖向长度不超过30m,有条件在风井顶部无墙区域进行风管连接后从上部深入竖井,到位后再做固定,此时风井内风管与混凝土墙距离不小于100,与后砌墙距离不小于50mm即可(附图七)。

b. 可从屋面吊装或在四周均为后砌墙的楼层连接时可采用上图尺寸,当井道内为多风管布置时,风管间距应为100mm。
1. 风井内结构板留洞不应以风井尺寸为依据,因风管安装空间较大,板上留洞过大会造成安装时的不方便及安全隐患。
2. 留洞应以满足风管安装要求为依据,风管距风井内壁距离≤100mm时,楼板留洞应留至风井内壁,风管距风井内壁距离100mm时,楼板留洞应只比风管大100mm,结构墙边应保留250mm楼板,以利于安装人员进入进行风管施工(附图八)。

以上各示意图均为非保温风管,标注风管与土建风井之间的最小安装距离,当风管为保温风管,且风管采用橡塑保温米乐 登录入口材料时,在此基础上,每根风管周边增加50间距(两根风管之间的总间距增加100)。

机电天下平台(网址:),聚集天下建筑机电行业之精英、汇聚天下建筑机电行业之精华!创建于2015 年 5月18 日。机电天下媒体矩阵主要由机电天下网站、机电天下公众号、机电天下学院、机电天下头条号等十余个知名平台自媒体组成,为建筑行业领域内的机电设计师、顾问、施工安装工程管理人员、设备材料厂商、开发商等提供信息服务、互联网精准营销服务、专业资料服务、技术培训服务等。
特别声明:以上内容(如有图片或视频亦包括在内)为自媒体平台“网易号”用户上传并发布,本平台仅提供信息存储服务。
伊朗出手,监控石油“咽喉”通道!伊立巨幅画暗指美航母被炸,配文“煽风者将得到风暴”!伊朗将领:邻国领土不得用于攻击伊朗
小伙救人胸外按压600次按断女子六根肋骨,当事人丈夫:没这力度,她可能成植物人,恩情永远还不完
就在今晚!1月28日19:30!中央5套CCTV5、CCTV5+直播节目表
泸州“花坛白骨案”受害者已厚葬,儿子回应“寻母流浪”:并非没人管,想跑出去找妈妈